Trilocale in vendita

Quarto, Via Francesco Cilea - Via Campana - Bivio
€ 210.000
3 locali 3 locali
100 Mq 100 Mq
2 bagni 2 bagni

Trilocale in vendita

Quarto, Via Francesco Cilea - Via Campana - Bivio

Descrizione annuncio

L'agenzia Tecnorete Quarto propone in vendita, con incarico esclusivo, una soluzione ubicata nel parco 'Tre Pini' in via Francesco Cilea, traversa di Via Consolare Campana - strada parallela della più conosciuta e commerciale Via Campana, che offre spazi confortevoli e funzionali.

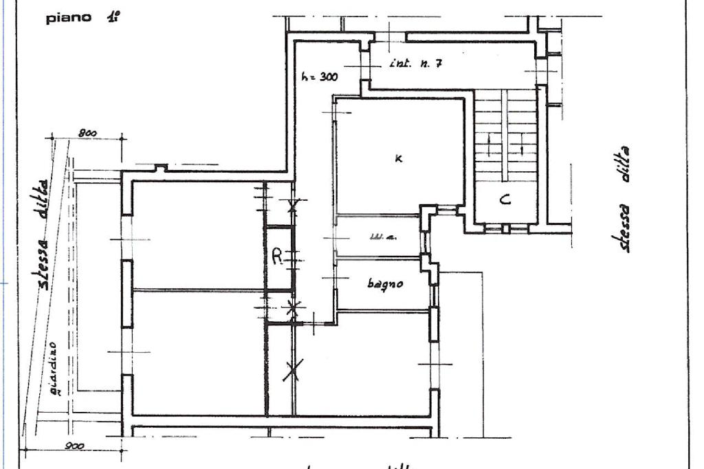
Situato al primo piano, l'immobile si estende su una superficie di 100 mq interni. Composto da due camere da letto accoglienti con uscita balconi, ripostiglio cieco, ampio salone con punto finestra ed una spaziosa cucina abitabile con angolo cottura in muratura.

Gli spazi esterni includono due balconi e un ampio spazio esterno pavimentato, perfetti per momenti di relax all'aperto. Lo spazio esterno dispone inoltre di un giardino privato, ideale per chi ama il verde.

L'appartamento dispone di due ingressi: uno interno dal palazzo che dà sul parco e uno indipendente dalla strada tramite passo carrabile, che facilita l'accesso e il carico/scarico. Soluzione ideale per chi cerca comodità, spazio esterno e doppio accesso.

Contattaci per maggiori informazioni e per organizzare una visita al numero 08119204511 (anche whatsapp) o scrivici al seguente indirizzo: na2c6.

Mostra tutto

Nelle vicinanze

Trasporto pubblico Trasporto pubblico
Quarto Officina
Quarto Officina
490 m
Quarto
Quarto
1,1 Km
Via Campana - Scuola Elementare G. Falcone
Via Campana - Scuola Elementare G. Falcone
240 m
Corso Italia - Civico N° 428
Corso Italia - Civico N° 428
320 m
Quarto di Marano
Quarto di Marano
440 m
Scuole Scuole
Scuole
920 m
Multicenter School srl
1,4 Km
Farmacia Farmacia
Farmacia Antomari
460 m
Farmacia
470 m
Supermercati Supermercati
MD Discount
310 m
Supermercati
440 m
Supermercato Decò
760 m
Supermercati Decò
1,2 Km
IperCOOP
1,3 Km
Negozi Negozi
Negozi
740 m
Negozio di orto-frutta
1,3 Km
Bar Bar
Bar
1,3 Km
Ristoranti Ristoranti
Ristoranti
2,2 Km
L'Edera
2,9 Km
Mostra tutto

Caratteristiche

Rif.:
61133476
Piano:
1 di 3 (Piano basso)
Posti auto:
2
Balconi:
2
Terrazzi:
1
Camere da letto:
2
Mostra tutto
Prezzo Prezzo
€ 210.000
Rata mutuo Rata mutuo
€ 990 / mese
Spese annue Spese annue
€ 432
Proponi il tuo prezzoProponi il tuo prezzo
Immobile valutato con T·Valuta

Classe Energetica

G
G
G
G
G
G
G
G
G
EP globale non rinnovabile:
138.68 kW h/m² anno
EP globale rinnovabile:
28.76 kW h/m² anno
EP invernale del fabbricato:
EP estiva del fabbricato:
Anno di costruzione:
1990
Riscaldamento:
Autonomo
Tipo impianto:
A radiatori
Tipo alimentazione:
Metano

Ti interessa visionare l'immobile?

Fissa un appuntamento  Fissa un appuntamento

Richiedi informazioni

Clicca su Leggi per aprire l'informativa
* Questi campi sono obbligatori

Calcola il tuo mutuo

Semplice e senza impegno
Anticipo

( % )
Mutuo

( % )

pochi semplici passi

inserisci i tuoi dati
Questionario completato
Grazie per aver richiesto un appuntamento senza impegno con un nostro Consulente del Credito e Assicurativo.

Hai inserito correttamente tutti i dati necessari e a breve riceverai una e-mail con un link da convalidare per inviare i tuoi dati.
Affiliato
Studio Corso Srl
Via Masullo, 25 80010 Quarto (NA)

Il nostro staff


  • Vittorio Volpe
    Affiliato

  • Giovanna Manna
    Coordinatrice
Via Masullo, 25 80010 Quarto (NA)
Zona: Quarto Via Campana e Monteruscello
Mostra su mappa
Orari: Lunedì - Venerdì 09:00 - 13:00/16:00 - 20:00 Sabato 09:00 - 13:00
Affiliato
Studio Corso Srl
Via Masullo, 25 80010 Quarto (NA)

2026 Tecnocasa Franchising S.p.A. - P. IVA 08365160152 - Via Monte Bianco 60/A 20089 Rozzano (MI). Ogni agenzia ha un proprio titolare ed è autonoma. Privacy policy | Policy utilizzo | Cookie policy